PDF output: Missing parts in drawings in generated pdf in Framemaker 2022
Hi,
we use pdf files that we insert in framemaker to make a catalog.
when we save as pdf, certain pages (always others) showing only parts of the inserted pdf file.
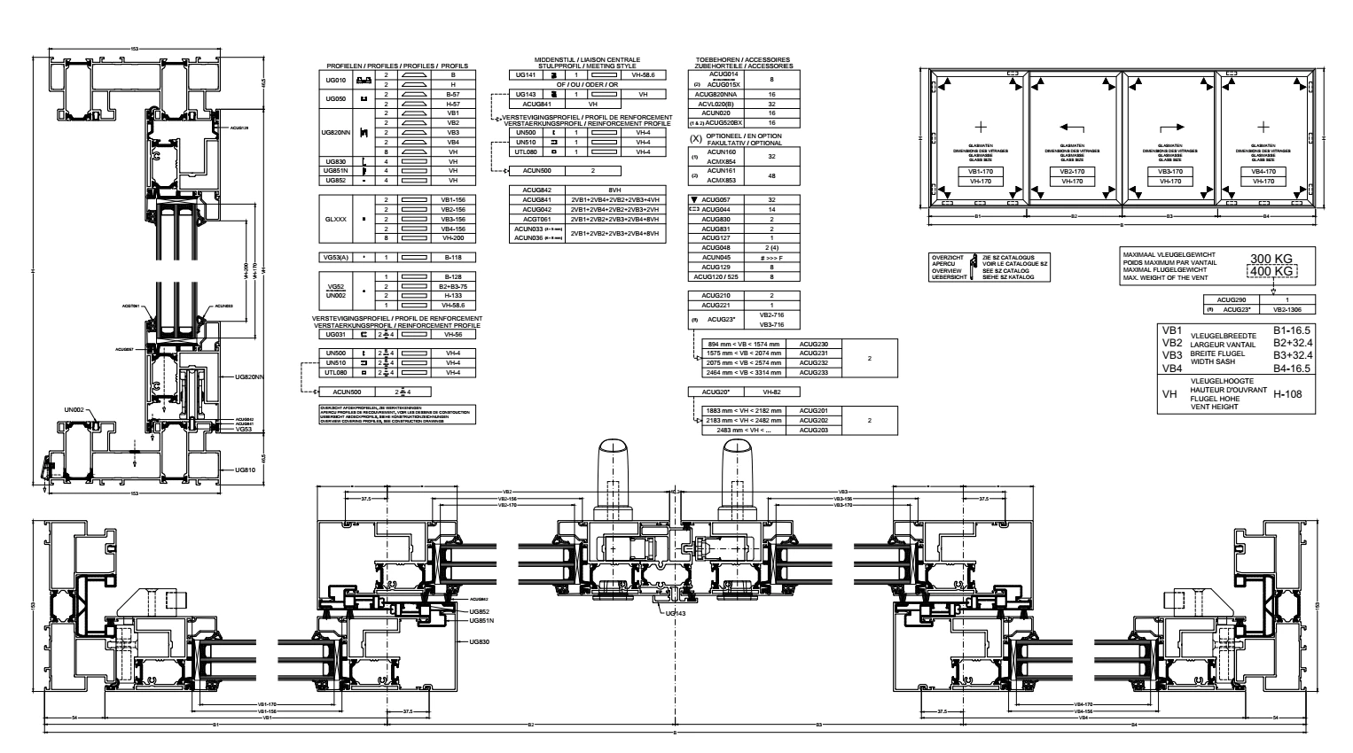
how it looks in framemaker en how it should be:

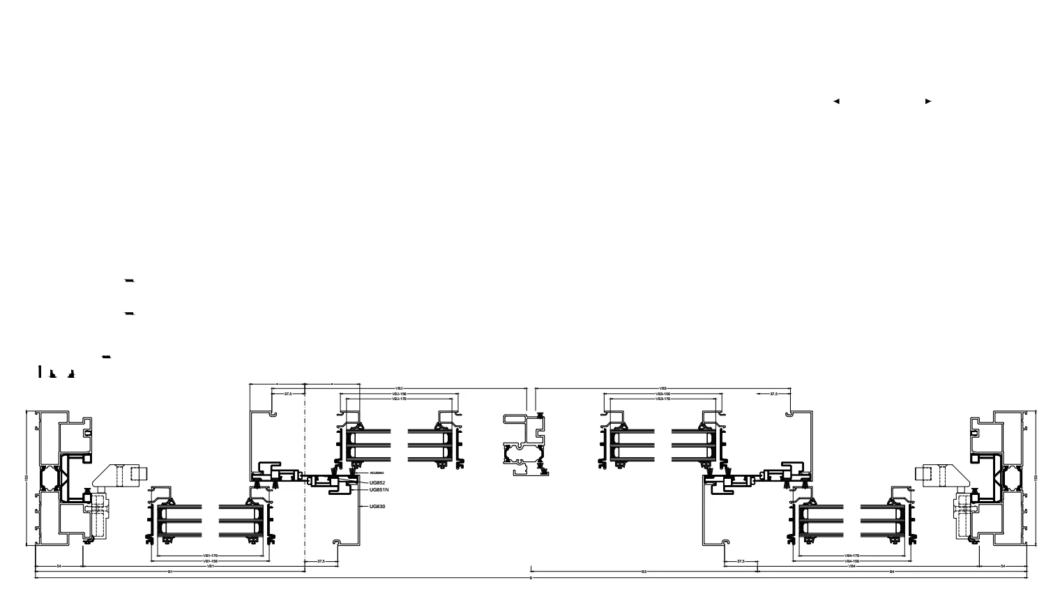
what the pdf file shows after Framemaker save as pdf:

as you see, a lot of details are missing.
Sometimes even a black shape shows in the pdf output... that shouldn't be there at all...

anyone tips to solve this?
Framemaker 2022, latest updates installed.
